Electric Motor Control Center Upgrade

Confidential Natural Gas Utility Pittsburgh, PA

Projects

Overview

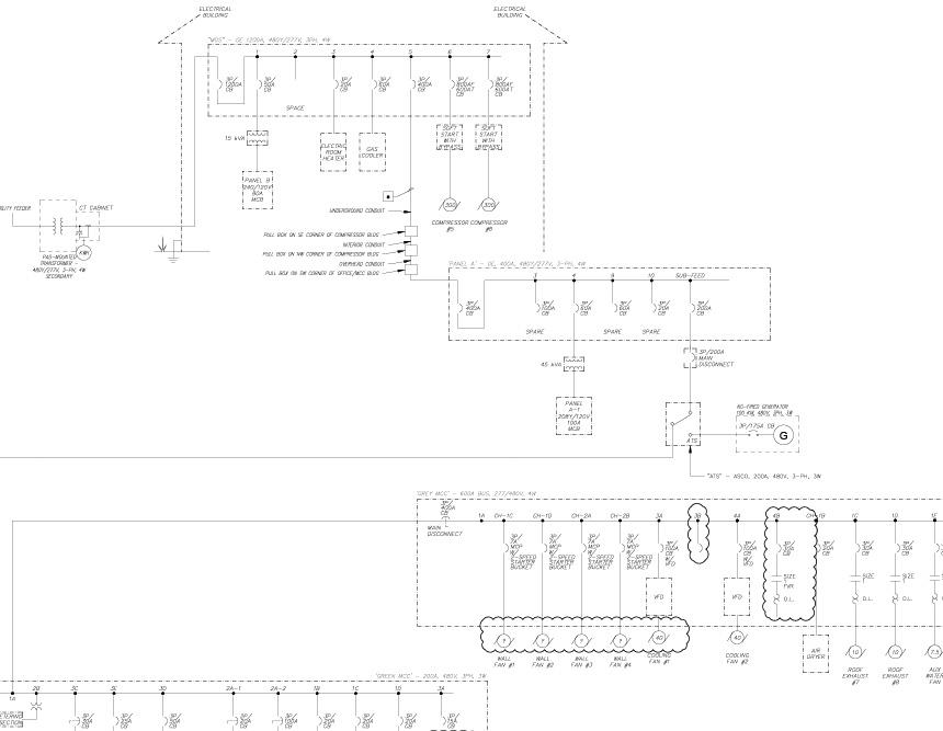
During a system risk assessment, it was determined that flooding was a real concern for a Motor Control Center (MCC) Building installed on grade at a Pennsylvania natural gas compressor station. In addition to the risk associated with potential flooding, this MCC was also identified as a piece of aging infrastructure for which parts sourcing is becoming increasingly challenging. As a result of these assessments, the owner approached Entech to upgrade the existing electrical infrastructure by designing elevated MCC foundations and a new MCC building, including consolidation of secondary distribution panels.

Solution Details
Design Highlights
  • Cable Tray (elevated) to extend power feeds from existing compressor building around existing office/electrical room to the new MCC Building
  • Cable Tray (elevated) to extend control circuits from existing Compressor
  • New MCC (including VFD’s) located in new prefabricated building
  • Future natural gas-fired generator and automatic transfer switch to provide 100% backup for the site’s electrical demand
  • Extension of existing circuits that will remain active to new source of power where applicable
  • Site plan indicating locations of new underground duct banks and manhole

We worked closely with the client’s site representatives to establish a baseline current condition drawing package due to the limited documentation of the electrical infrastructure of the site. This included multiple site visits and a 30% client review drawing package to make sure all conditions have been documented and to reduce the migration risk to an upgraded system.

Once a baseline drawing package was established, Entech then focused on the design of the new MCC building and the migration of the circuits and controls from existing systems. This included contacting a prefab building manufacturer and coordinating with mechanical and civil engineering to assure all flooding concerns are addressed.

For the final submission the Client asked us to update all the drawings to meet Entech standards in an effort to standardize their electrical and control drawing packages.

Following a ninety percent (90%) client review meeting, we provided a fully detailed construction set for the new MCC building and electrical infrastructure upgrades, this includes: Conduit and Cable Tray Plan, Electrical Aerial Site Plan, One-Line Diagrams, electrical installation details and grounding details. The control set included basic loop diagrams and hybrid drawing depicting the current state of control infrastructure.

Have a similar project? Let's talk about it! contact us
Top